Luxor Realty

Contact us: 082 887 0113

  • Zerwick EMPORIUM

ZERWICK EMPORIUM

  • Glen Eagle Office Park

    Cnr Monument & Braambos, Glen Marais, Kempton Park

  • View Map
  • Slide
  • Slide
  • Slide
  • Slide
  • Slide

Quick Summary

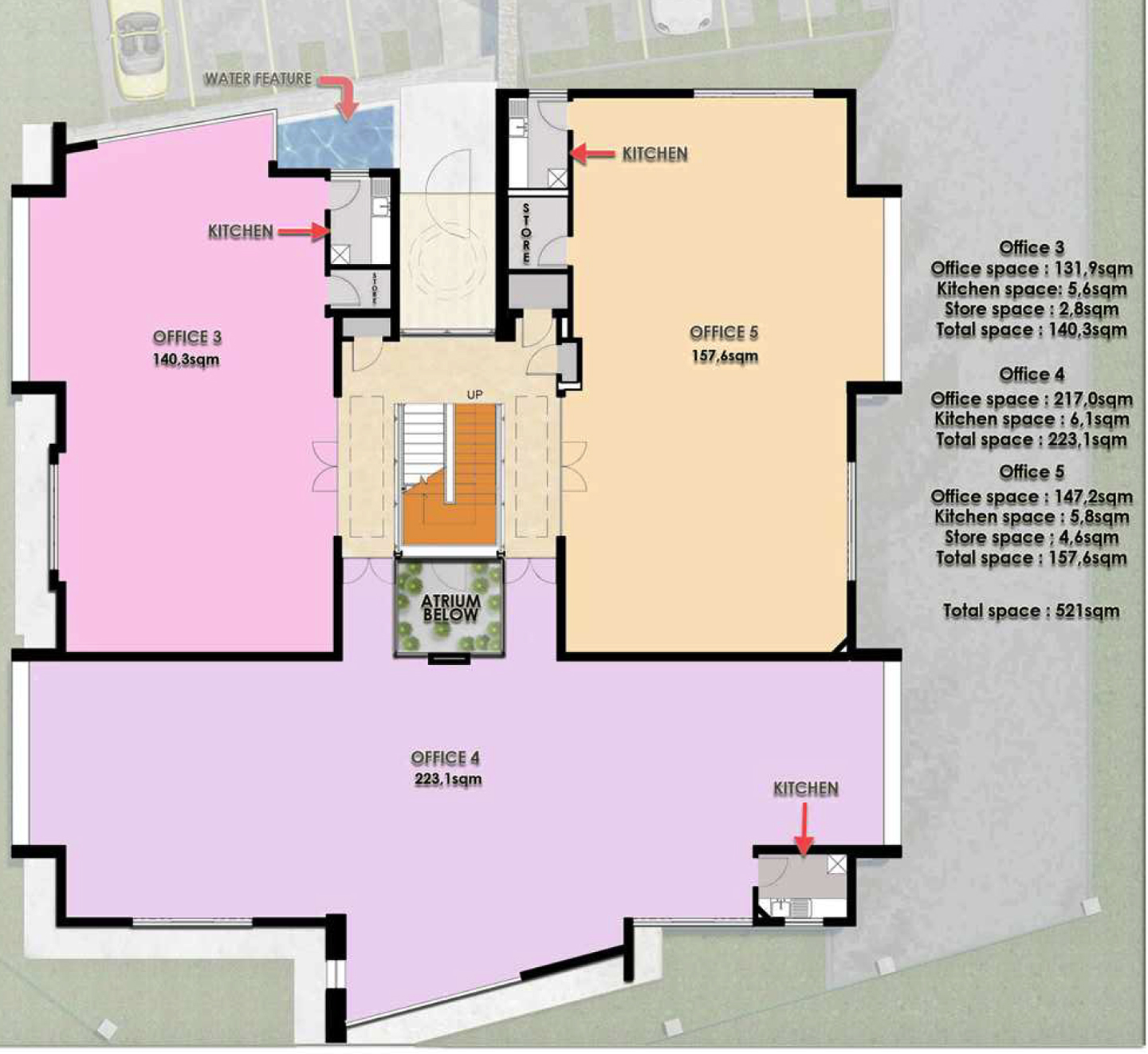
  • Premises: 5 Sectional Title Offices
  • Gross Lettable Area: 1058 m2
  • Parking Bays: 28

Property Description

Zerwick Emporium is currently tenanted by 2 proudly South African companies, 1 in the medical industry and the other in the insurance administration industry, which is excellently located close to the R21 corridor on the corner of Monument and Braambos Rd, Glen Marais. Custom flagship buildings to your specification and needs. Conveniently close to the O.R. Tambo International Airport and Gautrain stations.

It caters for all sizes of tenants, starting from 120 sq. m to 792 sq. m


Security

  • Automated Gate Entrance
  • CCTV
  • Alarm - Common Areas

Other

  • Back up Generator

Floor Plans